Дизайн проект мастерских

Кузовной ремон и окраска автомоибля

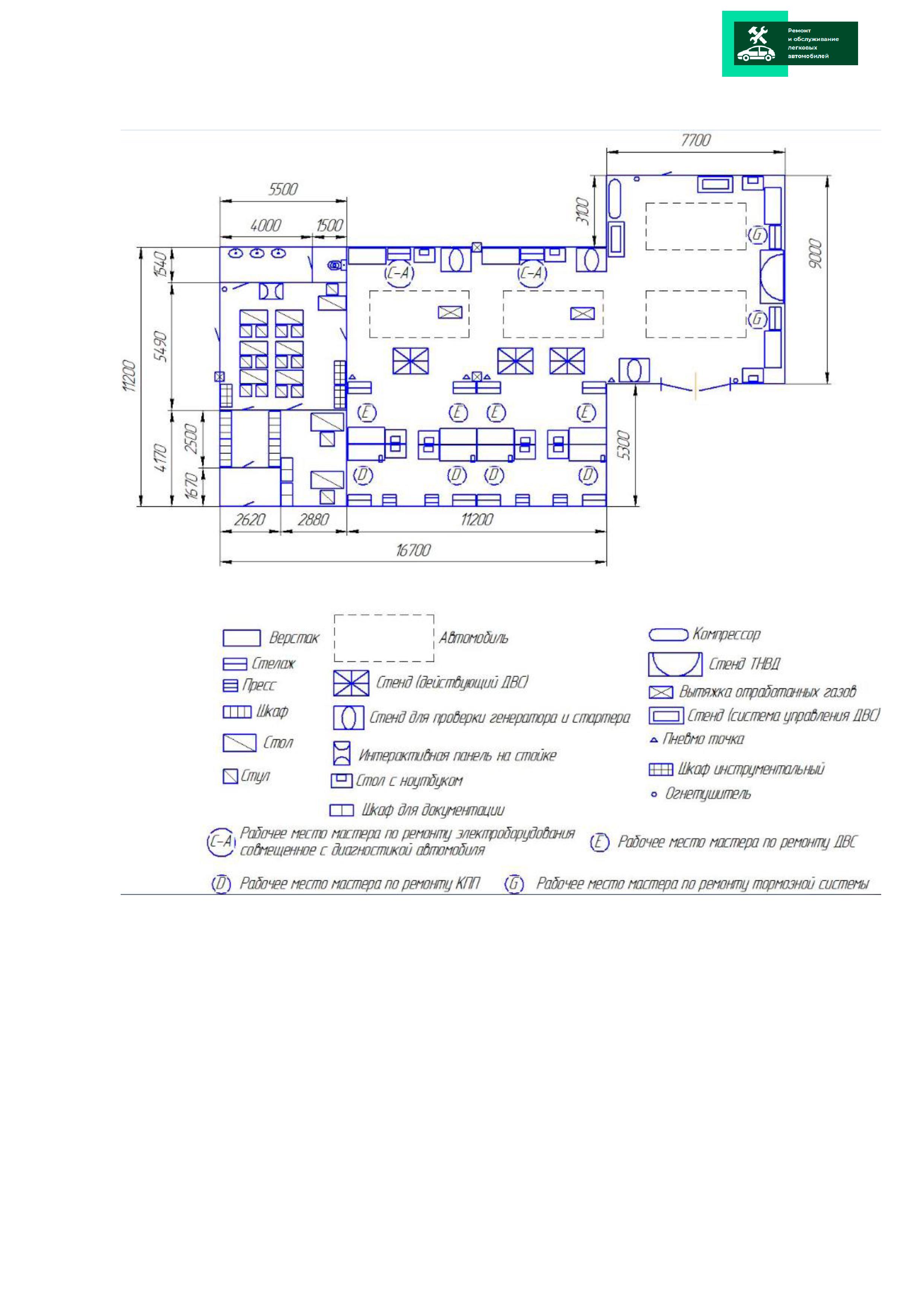
Ремонт и обслуживание автомобилей

Экспедирование грузов